会馆建筑·洛阳潞泽会馆
潞泽会馆位于洛阳市瀍河区新街南端,为全国重点文物保护单位。
潞泽会馆系清乾隆九年(1744)由在洛阳的潞安府(今长治)、泽州府(今晋城)两地商人集资所建,初为供奉关公的关帝庙,后改为会馆。抗日战争胜利后至新中国成立前,此处为潞泽中学。
潞泽会馆坐北朝南,东临瀍河,西靠城区,南临洛河。古洛河水运繁荣,是中国古代著名的水上交通要道,潞泽会馆择此址而建,是中国古代经商要诀“择地取胜”思想的反映。
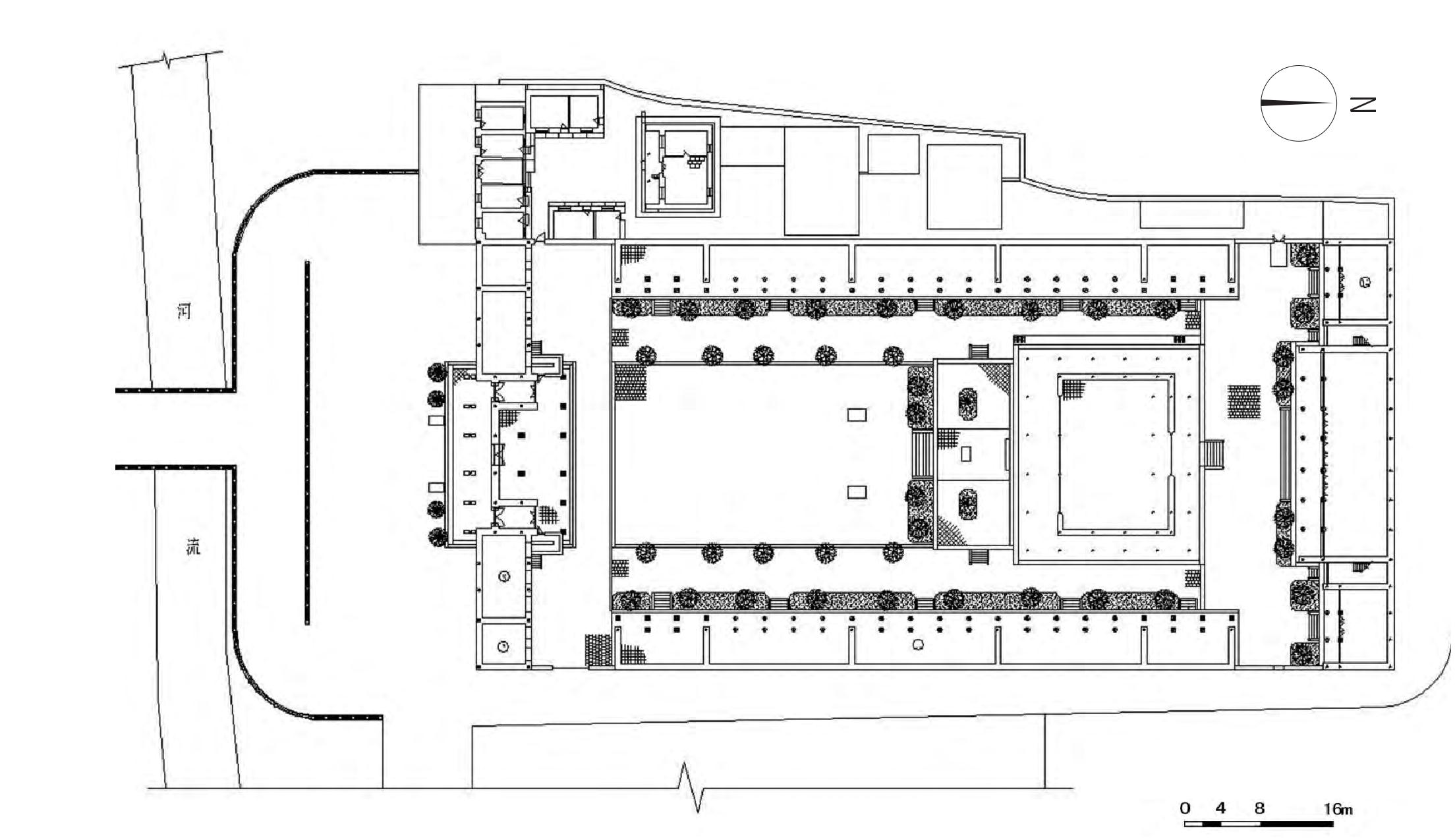
潞泽会馆建筑群布局严谨、气势宏大。现有建筑群依中轴线对称,为两进院落,平面呈长方形,占地1.57h㎡,目前保留有舞楼、大殿、后殿、钟鼓楼、东西配房、东西厢房、西跨院倒座、正房等建筑。
舞楼又名戏楼,两山墙与东西耳房及钟鼓楼连为一体,重檐歇山顶,灰瓦顶,绿琉璃剪边。南面为重檐门楼,面阔五间,进深三步架。梁架一层为进深三间带前廊用四柱,二层为进深三间用四柱五架梁对双步梁,斗栱为五踩单栱造,栱、翘均被雕刻成各种卷草形状,耍头被雕刻成龙首或象首。北面为三层重檐戏楼,面阔五间,进深两间,七步架。一层为过道,二层为戏台,三层为阁楼。戏台两边有石砌踏道。戏楼二层雀替分别雕刻有龙、鹿、麒麟、牡丹、卷草等各种吉祥图案,均为精美的透雕。
大殿为重檐歇山灰筒板瓦顶,绿琉璃剪边,黄绿琉璃菱心。殿面阔七间(21.18m),进深六间(17.87m),通高18.42m。大殿梁架为进深四间前带双步廊后带单步廊用五柱,七架梁上承五架梁和三架梁。一层斗栱为三踩单栱造,栱、翘均被雕刻成各种卷草形状,耍头被雕刻成象首。二层斗栱为五踩重昂单栱造,栱、翘均被雕刻成各种卷草形状,耍头被雕刻成龙首或象首。一层雀替均被透雕成各种龙缠牡丹图案,线条流畅,富丽繁复。
寝殿为单檐楼阁悬山式,绿琉璃瓦顶,面阔七间,进深四间,通高13.8m。寝殿梁架为五架梁对双步梁。斗栱为五踩重昂单栱造,栱均被雕刻成各种卷草形状,耍头被雕刻成龙首或象首。会馆建筑装饰十分考究,共有木雕、石雕作品近千处,造型奇特,形象逼真,是珍贵的民间艺术宝库。建筑构架上的彩绘系典型的河南地方彩绘手法,价值独特。
潞泽会馆现存《关帝庙新建碑文》《修建关帝庙潞泽众商布施碑记》等碑刻三通,记载了关帝庙的建造、捐金输粟和众商布施的情况,是研究清代会馆建设、商业经济状况的重要历史资料。

后殿(文宣提供)

大门(文宣提供)

总平面图(文宣提供)

大殿(文宣提供)

总剖面图(文宣提供)



上一篇:文庙书院建筑·洛阳河南府文庙
下一篇:佛教建筑·洛阳白马寺